久右衛門 母屋棟

古民家一棟貸 広いお部屋でゆっくりお過ごし下さい!最大16名様まで

料金:1名様 9,000円〜

283-0012 千葉県 東金市 下武射田1991

保存

予約問い合わせ・空室状況

当宿の予約・問い合わせ方法

【予約】カレンダーで日程を選び、「予約希望」を選択して必要事項を入力し、送信してください。

【問い合わせ】カレンダーで日程を選び、「問い合わせ」を選択して必要事項を入力し、送信してください。

予約の流れを確認する Cotteご利用ガイド

予約・問い合わせカレンダー

Calendar Loading
カレンダーコメント(開/閉)
  1. Loading
カレンダーの情報は、施設担当者が手動で更新しているため、最新の状況と異なる場合があります。

お知らせ

予約・問い合わせカレンダーは手入力のため更新が最新でない場合がございます。何卒ご了承くださいませ。



施設紹介

特徴

久右衛門 母屋棟|千葉県・九十九里・銚子の特徴写真|屋根付きBBQ!

屋根付きBBQ!

屋根がついていますので、雨でもBBQが楽しめます!

久右衛門 母屋棟|千葉県・九十九里・銚子の特徴写真|ご就寝は別々で!

ご就寝は別々で!

お友達家族との旅行でも寝室はわけてご利用いただけます!4部屋プラス客間にもお布団を敷くことができます!

久右衛門 母屋棟|千葉県・九十九里・銚子の特徴写真|遊んでください!

遊んでください!

外にはブランコ、鉄棒、砂場があります!

間取り

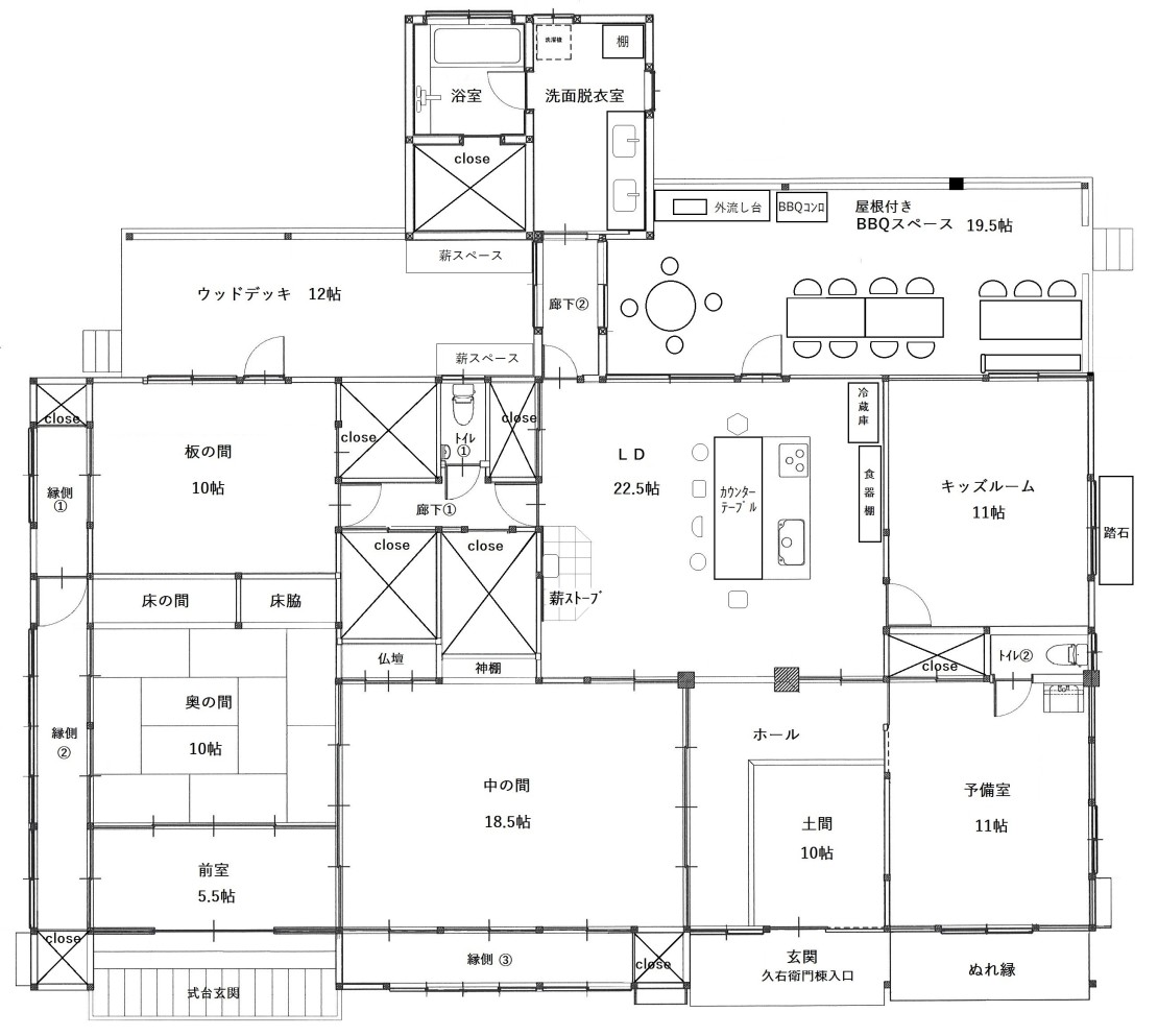
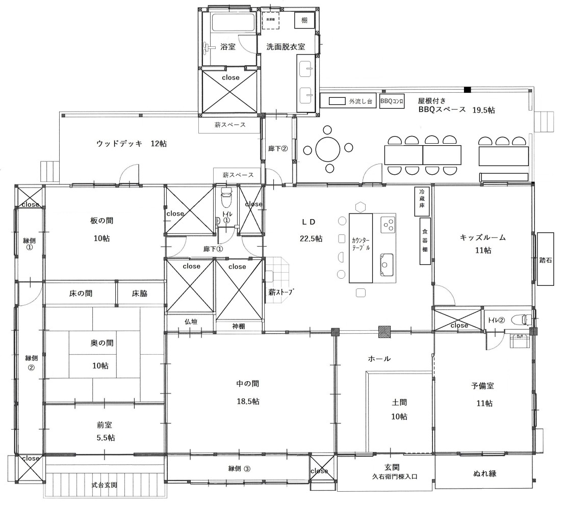
久右衛門 母屋棟|千葉県・九十九里・銚子の間取り写真|ダイニングキッチン・中の間18.5帖・寝室4部屋・浴室・洗面室・トイレ2ヵ所・BBQデッキ
※中の間も寝室としてご利用いただけます。

ダイニングキッチン・中の間18.5帖・寝室4部屋・浴室・洗面室・トイレ2ヵ所・BBQデッキ
※中の間も寝室としてご利用いただけます。

ご案内

ダイニング以外のお部屋は全てお布団を敷くことができますので、複数家族でいらしても寝室はわけることができます!
BBQは屋根付きのデッキですので、雨が降っても大丈夫!

久右衛門 母屋棟について

100年以上前に建てられた古民家をフルリノベーションして、とても快適にお過ごしいただけます。

最大16名様までご利用可能ですので、お友達家族との旅行や三世代旅行にぴったり!

お布団ですので、小さなお子様も安心してお泊りいただけます!

ペットご同伴のご宿泊はお断りしております。

https://www.youtube.com/watch?v=OQtZLipk1dI

https://www.aco.co.jp/id/65098.html

宿の公式サイト

久右衛門 母屋棟

宿の公式サイトを確認する(外部サイト)


アクセス・周辺情報

地図

283-0012 千葉県 東金市 下武射田1991

交通アクセス

東金ICよりお車で20分

JR東金線求名駅より徒歩20分


周辺情報

みのりの郷 https://minorinosato-togane.com/sisetsu

ベイシア東金店 https://www.beisia.co.jp/

メガドンキホーテ成東店 http://www.donki.com/store/shop_detail.php?shop_id=212

山武市成東観光苺協会 https://sanmu15.com/

蓮沼海浜公園 http://kodomonohiroba.hasunuma.co.jp/

蓮沼ウォーターガーデン http://watergarden.hasunuma.co.jp/








施設の詳細・ご利用案内

基本情報

施設名称久右衛門 母屋棟
施設タイプ貸別荘・コテージ
戸数(張数)1戸
住所283-0012 千葉県 東金市 下武射田1991
定員16人
駐車場無料
チェックイン15:00
チェックアウト10:00
電話番号090-4012-1991
公式サイト宿の公式サイトを確認する
営業許可番号住宅宿泊事業(民泊) M120001541号


設備・備品

60型テレビ 全室エアコン完備 空気清浄機2台 灯油ヒーター(冬季)2台

業務用冷蔵庫 IHコンロ 電子レンジ トースター 電気ポット 食器用洗剤 スポンジ 布巾

調理器具全般 鍋 フライパン 皿 コップ

洗濯機 洗剤 柔軟剤

バスタオル フェイスタオル シャンプー コンディショナー ボディーソープ ボディースポンジ



留意事項

BBQ,焚火,花火をご利用の際は午後9時までに終了をお願いいたします。

周りは民家ですので、音量や声量にお気をつけてお過ごしくださいませ。

ペット同伴のご宿泊はお断りしております。

ビニルプールをご持参いただけましたら、敷地内で水遊びを実施いただけます。

18歳未満の方のみのご宿泊はお受けいたしかねます。


新型コロナウイルスに対する取り組み

【感染症対策実施中】
チェックインの際に消毒と検温をお願いしております。
全ての食器と調理器具等は消毒済みですので、安心してご利用下さいませ。
室内清掃時、適宜アルコール消毒を施しております。

一棟貸しのおすすめ貸別荘・コテージ
大人数にオススメのおすすめ貸別荘・コテージ
家族旅行にオススメのおすすめ貸別荘・コテージ
最近チェックした宿
施設運営者の方へ|掲載のご案内
施設運営者の方へ

Cotteは貸別荘・コテージ・グランピング専門の宿泊情報サイトです。
宿に直接予約を受け付ける形で掲載できます。

施設掲載について