絶景コテージ マリンテラス熱海

プライベートサウナ(METOS社)とオーシャンビューBBQ 絶景コテージ

413-0103 静岡県熱海市網代627-714

保存

予約問い合わせ・空室状況

当宿の予約・問い合わせ方法

【予約】カレンダーで日程を選び、「予約希望」を選択して必要事項を入力し、送信してください。

【問い合わせ】カレンダーで日程を選び、「問い合わせ」を選択して必要事項を入力し、送信してください。

予約の流れを確認する Cotteご利用ガイド

予約・問い合わせカレンダー

Calendar Loading
カレンダーコメント(開/閉)
  1. Loading
カレンダーの情報は、施設担当者が手動で更新しているため、最新の状況と異なる場合があります。

お知らせ

当施設は予約状況を掲載しておりません。お問合せは問ボタンもしくはカスタマーセンター(10:00〜18:00)へ電話をお願いいたします。



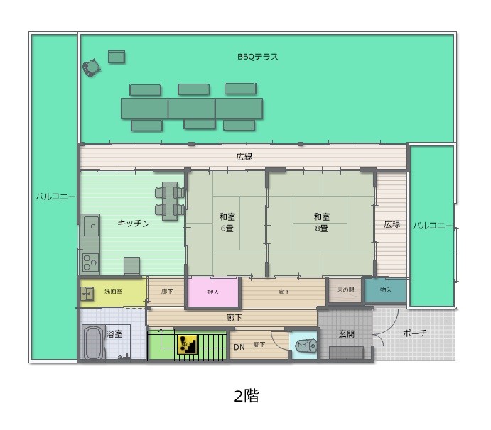
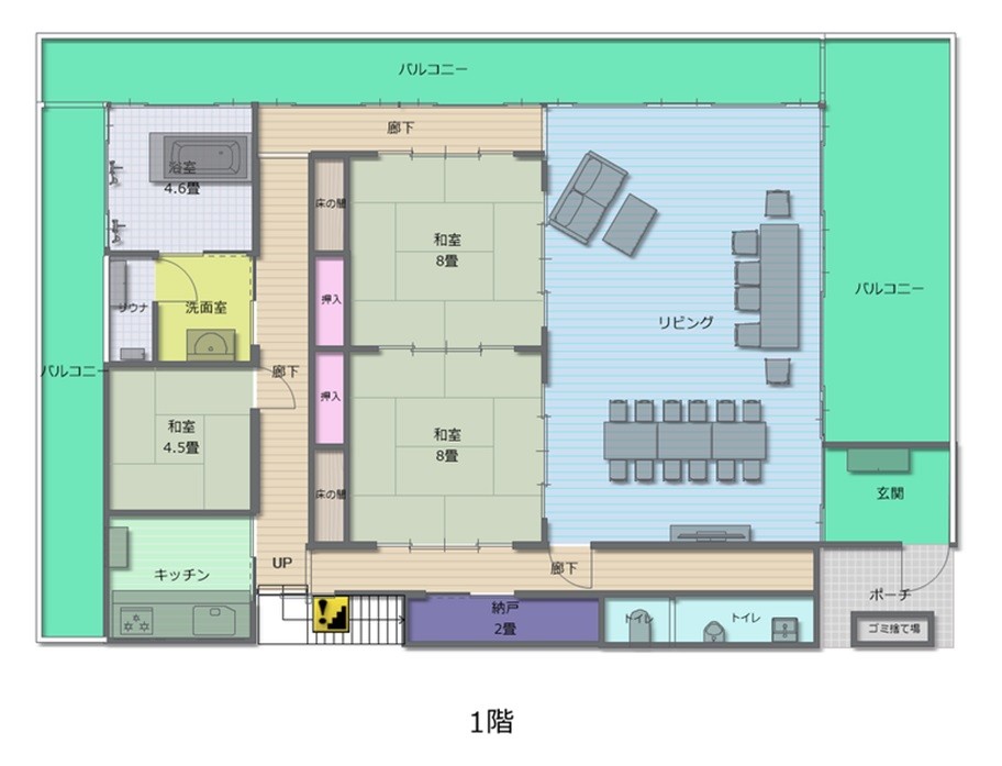
施設紹介

特徴

絶景コテージ マリンテラス熱海|静岡県・熱海の特徴写真|プライベートサウナ

プライベートサウナ

110℃迄調整可能です。 アロマ水を用意頂ければロウリュもおすすめです。※故障の原因となりますので少量の水でお願いします。

絶景コテージ マリンテラス熱海|静岡県・熱海の特徴写真|浴室

浴室

海を一望し心も体もととのいます。 そのままベランダで外気浴できます。

絶景コテージ マリンテラス熱海|静岡県・熱海の特徴写真|BBQ場(屋根付き)

BBQ場(屋根付き)

BBQ場はベランダに用意しました。 熱海を一望し、海上花火や富士山をぜひご覧ください。

ご案内

プライベートサウナとオーシャンビューで“ととのい〝を体験するコテージです。
※ヒーターはロウリュ専用ではございませんので少量の水でお願いします。
国道からわき道に入ってすぐでアクセスも良好です。(専用駐車場完備)
3階全てのバルコニーから絶景が広がります。
海を望むBBQ場には屋根がございますので安心です。

絶景コテージ マリンテラス熱海について

海水浴場、テーマパーク、動物園、お買い物なども近くにございますので長期滞在にもおすすめです。

宿の公式サイト

絶景コテージ マリンテラス熱海

宿の公式サイトを確認する(外部サイト)

宿のSNS公式アカウント

Twitter

公式xでも新規や新たな施設の情報を発信します
フォローをお願いします

Instagram

他の施設情報も発信中です。フォローよろしくお願いします。

Facebook

公式フェイスブックで情報を発信していきます
フォローといいねよろしくお願いします

YouTube

公式ユーチューブでも施設情報を発信していきます
チャンネル登録よろしくお願いします

LINE

貸別荘ランキング情報やお得な情報も配信中
ぜひお友達登録お願いします



アクセス・周辺情報

地図

413-0103 静岡県熱海市網代627-714

交通アクセス

熱海駅から所要時間は約20分(約12㎞)

最寄りの網代駅からは車9分(約2.8㎞)駅前タクシー営業所ございます
お車4台以上の場合はお問合せください。


周辺情報

長浜海水浴場 車10分

ACAO FOREST 車17分
熱海MOA美術館 車25分
熱海サンビーチ 車20分
伊豆グランパル公園な



施設の詳細・ご利用案内

基本情報

施設名称絶景コテージ マリンテラス熱海
施設タイプ貸別荘・コテージ
戸数(張数)1戸
住所413-0103 静岡県熱海市網代627-714
定員20人
駐車場3台以上(無料)※4台目以降は問合せ下さい
チェックイン15:00
チェックアウト10:00
電話番号0557-37-5155
カスタマーセンター10:00~18:00
公式サイト宿の公式サイトを確認する
営業許可番号静岡県熱海保健所/第241の35


設備・備品

□設備(無料) サウナ、高速Wi-Fi風呂、バス(温泉)、シャワー、トイレ ウォッシュレットトイレ、テレビ 、 冷房、暖房等

□アメニティ(無料)

シャンプー、リンス、ハンドソープ、 ボディーソープ、ドライヤー 

※歯磨きセット、タオルはございませんのでご用意ください。

□調理設備(無料)

食器一式、

キッチン、ガスコンロ3つ口、トースター、ホットプレート、冷蔵庫、電子レンジ、電気炊飯器、調理器具一式

□バーベキュー(エリア利用無料)

□BBQ設備(無料)


留意事項

【ご注意】

□チェックイン:15:00チェックアウト10:00​

(宿泊の当日に現地で鍵のお渡しと使用説明に担当者が伺います)

□全室禁煙(宿内)

BBQエリアのご利用は夜9時迄です。

 地域にお住いの方への配慮ですので、ご理解を頂き、時間厳守でお願い致します。

 お守り頂けないお客様のお泊りはお受け出来ません。

□焚き火禁止です。

□音楽や大騒ぎは禁止です。

□花火は禁止です。

□ご出発前の簡単な清掃にご協力ください。

上記事項をお守り頂けないお客様は宿泊中でもお帰り頂く事があります。

その場合のご宿泊代のご返金は致しません。

ご協力、お願い致します。


新型コロナウイルスに対する取り組み

当施設の感染予防対策についてお知らせ致します。
当宿は他のお客様と接触する事がない施設です。
徹底清掃、消毒、を実施し、空気が関係するエアゾル感染対策を万全にし安心して利用いただけるよう努めます。

エタノール75%スプレーや次亜塩素酸ナトリウム等を使用した清掃及び全室全開にて空気の入れ可を実施し布団カバー等は毎回クリーニングしております。

お客様におかれましてもご利用の当日のお買い物時(コンビニ、スーパー)に商品に触れた後の手の処理や洗面、手洗い場、トイレ等の利用後は是非アルコール消毒を行って頂きます様お願い致します。

ペットと泊まれるおすすめ貸別荘・コテージ
一棟貸しのおすすめ貸別荘・コテージ
大人数にオススメのおすすめ貸別荘・コテージ
最近チェックした宿
施設運営者の方へ|掲載のご案内
施設運営者の方へ

Cotteは貸別荘・コテージ・グランピング専門の宿泊情報サイトです。
宿に直接予約を受け付ける形で掲載できます。

施設掲載について